The Venue

Book A Private Event

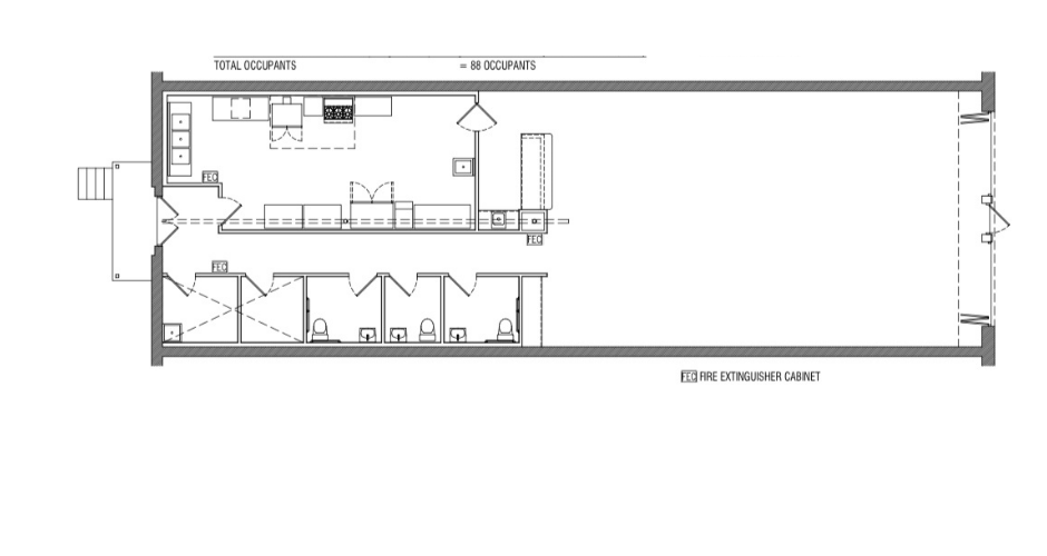
Four Copper Pennies is located at 110 South Main Street in downtown Columbiana, Alabama. With seating for 85 it’s the perfect venue for birthday parties, rehearsal dinners, showers, family gatherings, and reunions. The space spans more than 2400 square feet and includes a 1500 square foot dining room, three bathrooms, and a full commercial kitchen.

110 South Main Street has been skillfully restored exposing the original brick and tongue and groove ceilings. The floors have been painstakingly restored to their original glory. Each penny on the bathroom floor holds a memory and tells a story. This gorgeous space invites you to make memories of your very own.

Columbiana is the quid essential small town located between Interstate 65 in Calera and Highway 280 in Chelsea. Columbiana is the Shelby County seat and home to the Shelby County Arts Council. Four Copper Pennies is located in the heart of the Columbiana LIVE Entertainment District where multiple events take place throughout the year.

Four Copper Pennies Layout

Weekday Rental Packages

 

$400

Weekday Essential

A three hour rental (Monday through Thursday) that includes the main hall, tables and chairs, set up, and cleaning fee. Rental is ideal for meetings, small parties, gatherings, and community events. This rental does not include use of the commercial kitchen.

 

$750

Weekday Standard

A six hour rental (Monday through Thursday) that includes the main hall, commercial kitchen, tables and chairs, set up, and cleaning fee. Rental is ideal for meetings, small parties, gatherings, and community events. This rental does include full use of the commercial kitchen.

$500

Weekday Basic

A four hour rental (Monday through Thursday) that includes the main hall, tables and chairs, set up, and cleaning fee. Rental is ideal for meetings, small parties, gatherings, and community events. This rental does not include use of the commercial kitchen.

 

$1425

Weekday Premier

A ten hour rental (Monday through Thursday) that includes the main hall, commercial kitchen, tables and chairs, set up, and cleaning fee. Rental is ideal for meetings, small parties, gatherings, and community events. This rental does include full use of the commercial kitchen.

Weekend Rental Packages

 

$600

Weekend Essential

A three hour rental (Friday, Saturday, Sunday) that includes the main hall, tables and chairs, set up, and cleaning fee. Rental is ideal for meetings, small parties, gatherings, and community events. This rental does not include use of the commercial kitchen.

 

$1025

Weekend Standard

A six hour rental (Friday, Saturday, Sunday) that includes the main hall, commercial kitchen, tables and chairs, set up, and cleaning fee. Rental is ideal for meetings, small parties, gatherings, and community events. This rental does include full use of the commercial kitchen.

$700

Weekend Basic

A four hour rental (Friday, Saturday, Sunday) that includes the main hall, tables and chairs, set up, and cleaning fee. Rental is ideal for meetings, small parties, gatherings, and community events. This rental does not include use of the commercial kitchen.

 

$1625

Weekend Premier

A ten hour rental (Friday, Saturday, Sunday) that includes the main hall, commercial kitchen, tables and chairs, set up, and cleaning fee. Rental is ideal for meetings, small parties, gatherings, and community events. This rental does include full use of the commercial kitchen.

Get in Touch